RRP

Venlo

Het nieuwe pand van RRP heeft een industrieel karakter, constructieve voorziening en gebouwinstallaties zijn uitgevoerd als zichtwerk. Dankzij goed engineeringsoverleg met constructeur Adviesbureau Van de Laar en E- & W-installateur Unica zijn alle elementen zorgvuldig in het pand verweven en behaalt Van Wijnen in de uitvoering de geambieerde zichtkwaliteit.

Opgeleverd

RRP Venlo, foto Patrick Hübner
RRP Venlo, foto Patrick Hübner
RRP Venlo, foto Patrick Hübner
RRP Venlo, foto Patrick Hübner
RRP Venlo, foto Patrick Hübner

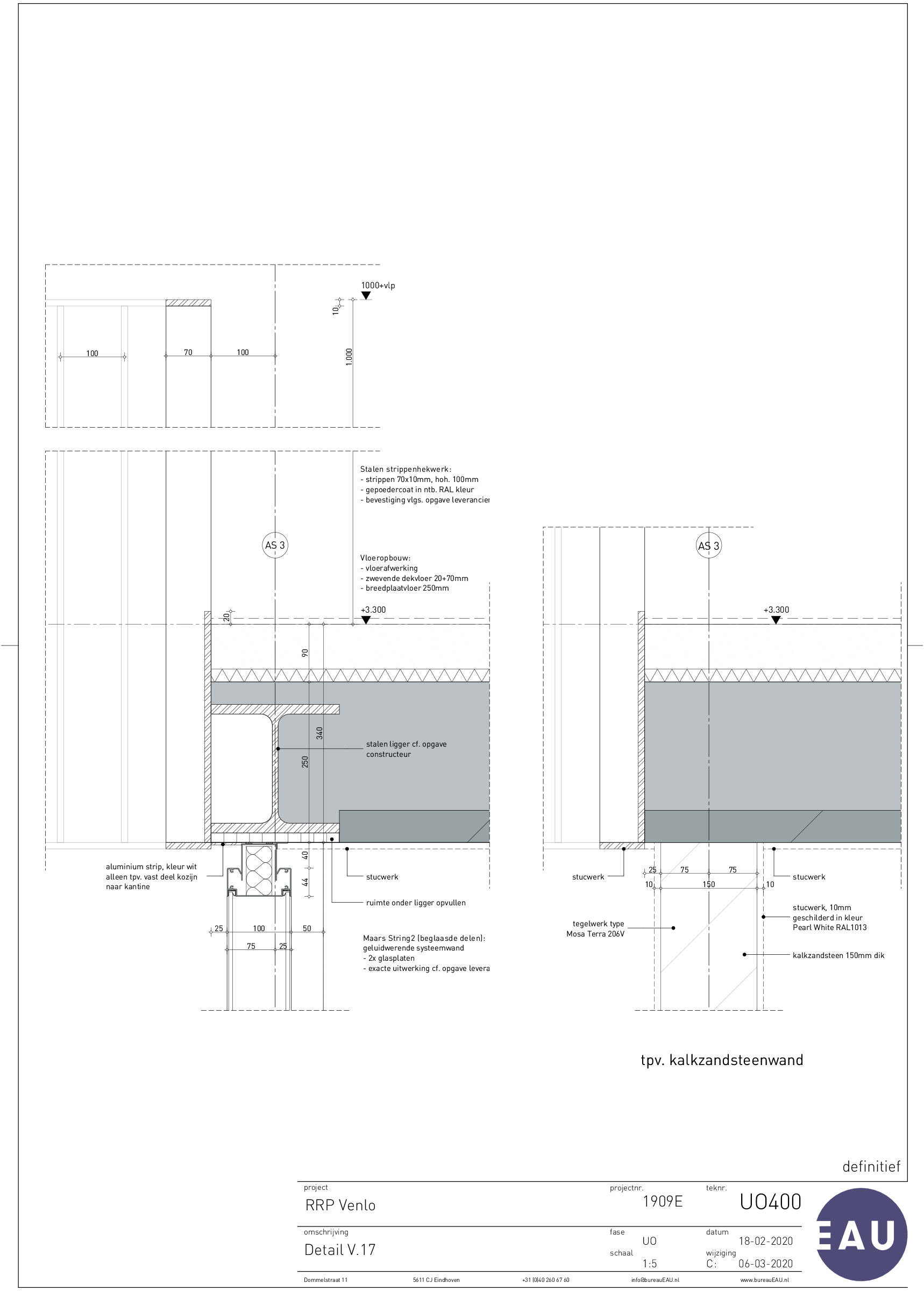
In opdracht van Van Wijnen Rosmalen heeft BureauEAU zorggedragen voor de bouwkundige UO BIM Engineering van het nieuwbouw kantoor voor RRP Venlo. Vertrekpunt voor de UO BIM Engineering was het definitief ontwerp van de hand van Royal Haskoning DHV.

In uitvoering

RRP, Venlo
RRP, Venlo
RRP, Venlo
RRP, Venlo
RRP, Venlo
RRP, Venlo
RRP, Venlo
RRP, Venlo
RRP, Venlo

Proces

RRP, Venlo
RRP, Venlo
RRP, Venlo
RRP, Venlo
RRP, Venlo
RRP, Venlo

Projectgegevens

Functie
Kantoor
Opdrachtgever
van Wijnen, Rosmalen
Contract
Engineer & Build
Werkzaamheden
Bouwkundige UO BIM-Engineering vanaf DO
Omvang
1200 m2
Looptijd
oktober 2019 - november 2020
Architect
Royal Haskoning DHV

Bekijk alle projecten